- Home
- Woningaanbod
- Gorechtkade 33 a
Gorechtkade 33 a GRONINGEN

vraagprijs
€ 298.000 Kosten koper

Omschrijving
Op een mooie locatie gelegen 4-kamer appartement op de 1e verdieping met zicht op de Gorechtvijver en nabij het UMCG en op fietsafstand van het centrum.
Indeling:
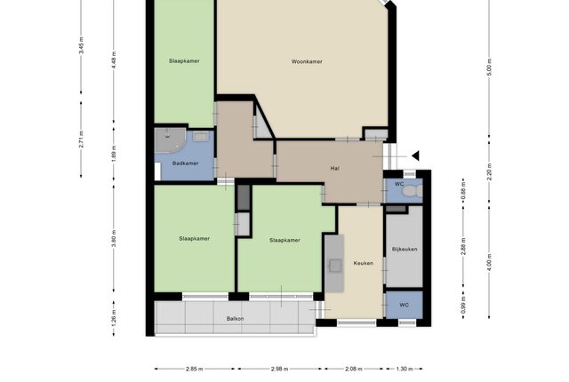
Gezamenlijk portiek met intercom, entree appartement, woonkamer met uitzicht op de vijver, keuken met gasplaat, oven en wasemkap, voorraadkast, bijkeuken en deur naar balkon, slaapkamer( ca. 2,98 x 3,80 m), slaapkamer (2,85 x 3,80 m), slaapkamer ( 4,48 x 2,11 m), badkamer met douche, badmeubel met v.w.t., wandkast, berging op de 3e verdieping en berging op de begane grond.
Zolder:
Op de 5e verdieping is nog een zolder.
Bijzonderheden:
- woonoppervlakte ca. 94 m² en inhoud ca. 280 m³;
- voorzien van kunststofkozijnen met dubbele beglazing;
- c.v. ketel Intergas huur € 27,20 per maand;
- maandelijkse bijdrage VVE € 134,76;
- parkeren in de woonwijk is met een parkeervergunning € 131,40 per jaar.
AANVAARDING In overleg
KOSTEN KOPER overdrachtsbelasting, alsmede notariskosten
DISCLAIMER De op deze website getoonde informatie is met zorg samengesteld, doch aanvaardt Makelaardij Wijnands geen aansprakelijkheid voor onjuistheden in en onvolledigheden van de opgenomen
Indeling:
Gezamenlijk portiek met intercom, entree appartement, woonkamer met uitzicht op de vijver, keuken met gasplaat, oven en wasemkap, voorraadkast, bijkeuken en deur naar balkon, slaapkamer( ca. 2,98 x 3,80 m), slaapkamer (2,85 x 3,80 m), slaapkamer ( 4,48 x 2,11 m), badkamer met douche, badmeubel met v.w.t., wandkast, berging op de 3e verdieping en berging op de begane grond.
Zolder:
Op de 5e verdieping is nog een zolder.
Bijzonderheden:
- woonoppervlakte ca. 94 m² en inhoud ca. 280 m³;
- voorzien van kunststofkozijnen met dubbele beglazing;
- c.v. ketel Intergas huur € 27,20 per maand;
- maandelijkse bijdrage VVE € 134,76;
- parkeren in de woonwijk is met een parkeervergunning € 131,40 per jaar.
AANVAARDING In overleg
KOSTEN KOPER overdrachtsbelasting, alsmede notariskosten
DISCLAIMER De op deze website getoonde informatie is met zorg samengesteld, doch aanvaardt Makelaardij Wijnands geen aansprakelijkheid voor onjuistheden in en onvolledigheden van de opgenomen


